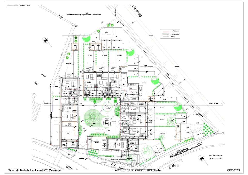
Het nieuwe woonerf omvat 10 eengezinswoningen omheen een gemeenschappelijke binnentuin met een gemeenschappelijke groenzone achteraan ( 3000m² ) , de nodige parkeerplaatsen en tuinbergingen. De woningen worden volledig afzonderlijk van elkaar gebouwd en met elk een eigen privé-tuin. Iedere woning heeft 3 of 4 slaapkamers.
De woningen hebben een variërende breedte en oppervlakte. De smalste woningen hebben een breedte van 6m. Dit komt overeen met de ritmiek van de ramen van de bestaande te bewaren gevel zodat er geen aanpassingen aan deze gevel dienen te gebeuren.
Er worden ook een aantal collectieve voorzieningen aangebracht: zoals een speelzone, gemeenschappelijk terras en een collectieve berging voor de technieken van de gemeenschappelijke verwarming dmv een warmtepomp op geothermie.



